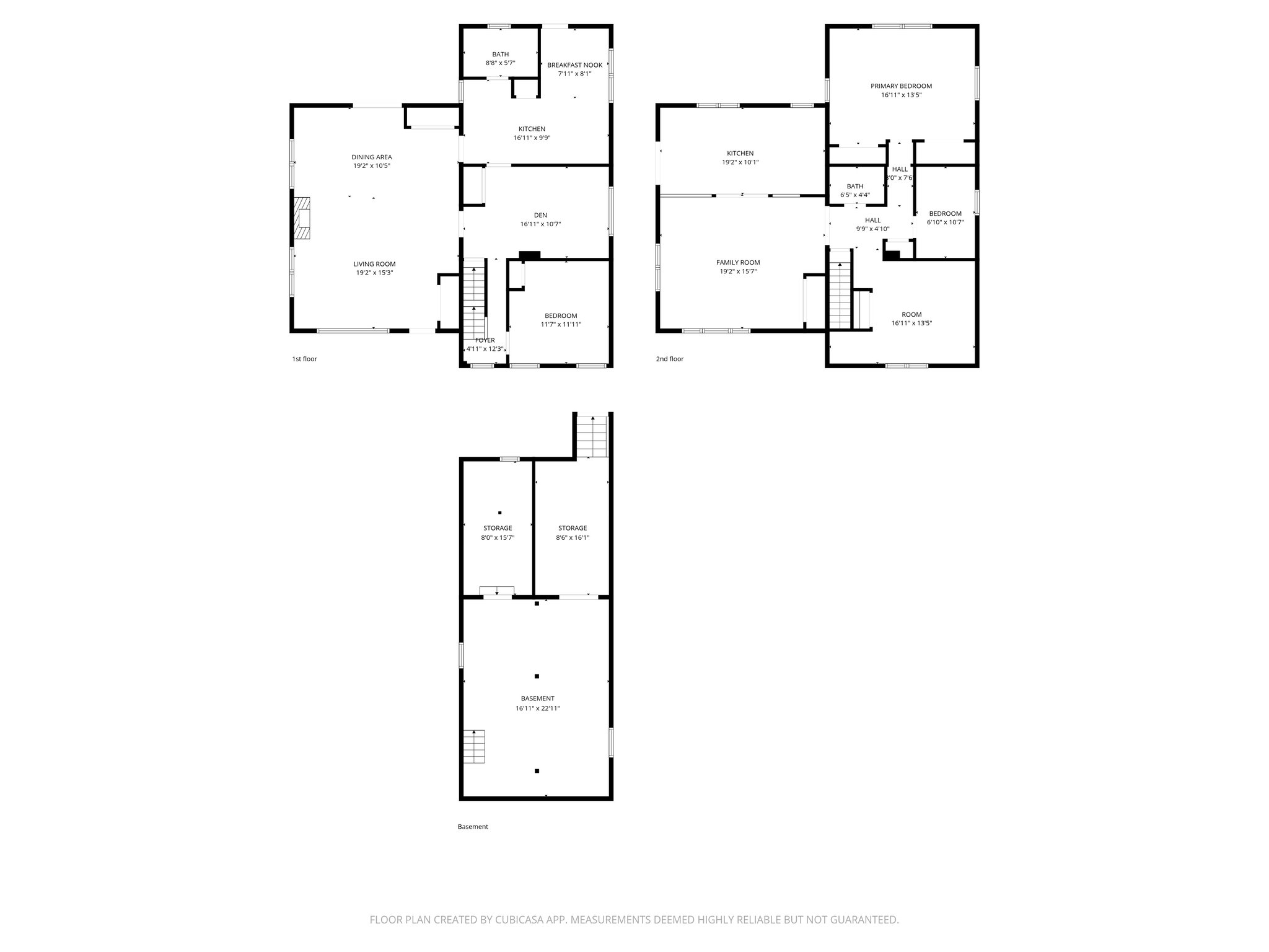
Here’s a great investor opportunity in Bergenfield! This legal two-family offers strong income potential, flexible layouts, and value-add upside. Once a single-family residence, this home was converted for multi-generational use and offers an interior stairwell and exterior entrance to the second level apartment.
The first floor features a modern eat-in kitchen, full bath, oversized living room with a wood-burning fireplace, dining area, and a den that can easily be converted into a second bedroom, plus an additional bedroom. The second floor offers separate interior and exterior access, a large modern eat-in kitchen with an adjoining family room, 2 bedrooms, storage room and a half bath with potential to be finished into a full.
Conveniently located near NYC bus and train options, this spacious, well-situated property is full of opportunity—bring your vision and maximize returns.

  • $650,000
  • 3 Bedrooms
  • 1.5 Bathrooms
  • 2,556 Sq/ft
  • 4 Parking Spots
  • Built in 1896