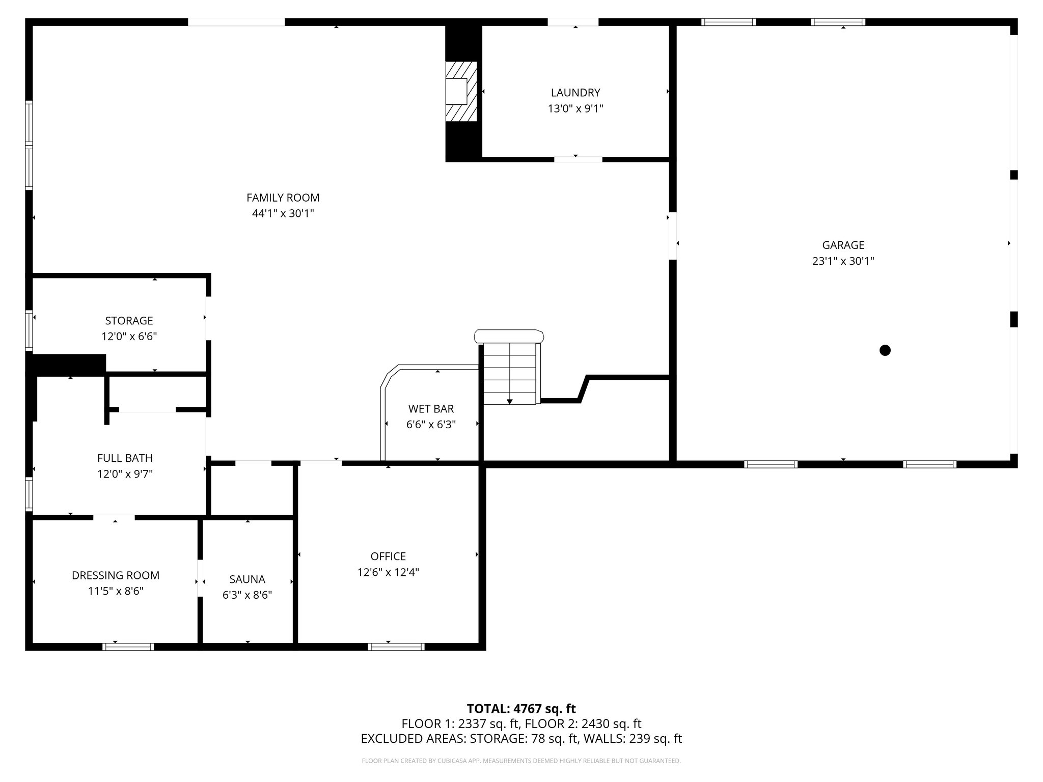
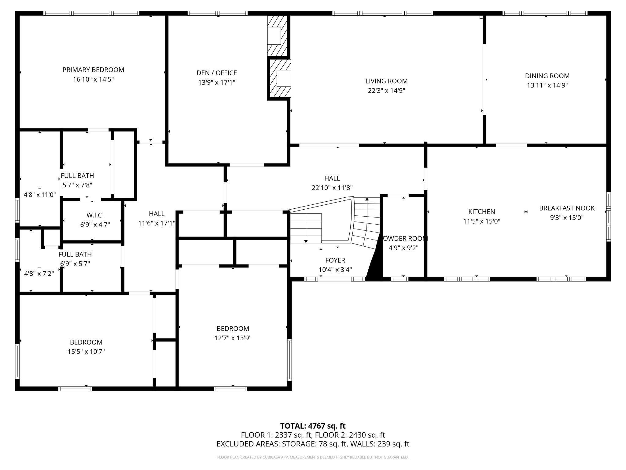
Fantastic Value in Franklin Lakes! Set on 1.7 private, wooded acres, this 4,500+ sq. ft. all-brick raised ranch offers incredible space, solid construction, and privacy in one of Bergen County’s most sought-after communities. From the moment you arrive, the home’s inviting presence and generous proportions capture your attention.Step inside to a spacious layout designed for both comfort and entertaining. The oversized living room, complete with a wood-burning fireplace, flows seamlessly to the formal dining room and modern eat-in kitchen featuring granite countertops, center island and stainless steel appliances. Three large bedrooms include a primary suite with two double closets, a walk-in closet, and a private bath—your personal retreat! A warm and inviting den with its own fireplace and custom built-ins provides the perfect space for relaxation or for remote work or study.The walk-out lower level is perfect for entertaining or multi generational living. This space offers a family room with a wood-burning fireplace, built-in wet bar, office, full bath with sauna—and French doors to the back patio. Hardwood floors, three fireplaces, and a three-car attached garage add both charm and convenience. A rare opportunity to customize and create your dream home today!

  • $915,000
  • 3 Bedrooms
  • 3.5 Bathrooms
  • 4,538 Sq/ft
  • Lot 1.74 Acres
  • 3 Parking Spots
  • Built in 1964

Floor Plans

Contact

Feel free to contact us for more details!

The Odell Cirino Group

KELLER WILLIAMS VILLAGE SQUARE REALTY

+12012802212

[email protected]

License #: 1109806

KELLER WILLIAMS VILLAGE SQUARE REALTY